港区小碓三丁目 一棟貸店舗事務所
不可業種無し(風営法の届が必要な業種は要相談)一棟貸し物件です。
諸条件ご相談ください。
資料請求・質問等ございましたら下記連絡先へご連絡ください。
営業担当:棚川
連絡先:090-6614-9931(直通)
会社番号:052-228-9931
- 賃料/坪単価
- 49万5,000円 /
0.32万円
- 坪数/面積
- 154.57坪 /
510.98㎡
- 所在階
- -
- 管理費・共益費
- -
- 保証金
- 4ヶ月
- 礼金
- 0ヶ月
担当者のコメント 棚川有里

- 不可業種無しの1棟貸し物件です。ご興味ございましたら是非一度お問い合わせ下さい。
ポイント・特徴
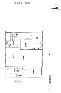
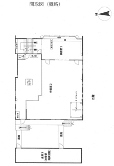
物件概要
【店舗事務所】 物件番号:88217073 情報更新日:2025年11月11日 次回更新予定日:2025年11月25日| 所在地 | 愛知県名古屋市港区小碓3丁目 | ||
|---|---|---|---|
| 交通 |
|
||
| 坪数(面積) | 154.57坪(510.98㎡) | ||
| 賃料/坪単価 | 49.5万円/0.32万円 | 管理費・共益費 | - |
| 敷金/礼金/保証金 | 0ヶ月/0ヶ月/4ヶ月 | 償却/敷引 | 50.00%/- |
| 更新料 | - | 権利金/雑費 | -/- |
| 造作譲渡金 | - | 駐車場/月額料金 | -/- |
| 保険加入/料金 | 有/- | 保険名/保険期間 | -/- |
| 保証人代行義務 | 必加入 | 保証会社 | - |
| 保証会社詳細 | - | 向き | - |
| 築年月(築年数) | 1982年 6月 (築43年) | 契約期間 | 定期借家 10年 |
| 種別/構造 | 店舗事務所/鉄骨造 | 用途地域 | - |
| 部屋/所在階/階建 | -/-/3階建 | 総戸数 | - |
| 現況/引渡時期 | 空家/相談 | 取引態様 | 一般媒介 |
| 物件番号 | 88217073 | 取引条件の有効期限 | 2025年11月25日 |
| 設備条件 |
|
||
| 備考 |
・業種により諸条件応相談 ・ダムウェーダー動作未確認 ・不可業種なし(風営法の届が必要な業種は要相談) ・3階ほぼスケルトン ・附属建物(未登記):倉庫 軽量鉄骨造合金メッキ鋼板ぶき2階建 床面積66.42㎡ 諸条件ご相談ください。 資料請求・質問等ございましたら下記連絡先へご連絡ください。 営業担当:棚川 連絡先:090-6614-9931(直通) 会社番号:052-228-9931 |
||
| 取扱会社 |
|
||
※地図上に表示される物件の位置は付近住所に所在することを表すものであり、実際の物件所在地とは異なる場合がございます。








